【新発売】自然の中での滞在に特化したタイニーハウス「ROADIE」にコンパクトで軽やかな20ftモデルが誕生|YADOKARI

YADOKARI株式会社(以下YADOKARI)は、自然の中での滞在に特化したタイニーハウス「ROADIE」シリーズの新モデル「20ftモデル」の販売を2025年2月27日(木)より開始致します。

「ROADIE」は、「自然の中の暮らしを実現するタイニーハウス」というコンセプトで開発がされました。今回の20ftモデルでは、「ROADIE」の特徴である空間の広さは残しつつ、"限られたスペースでタイニーハウスを設置したい"、"内部までまた自然と一体化するような空間にしたい"という声に応えて、よりコンパクトで木質感のある内外装を施した自然に溶け込むデザインを目指しました。
■ ROADIE 20ftモデルの3つの特徴
1. 内外装に木材を使用
従来のモデルでは、一部分で木材を使用していましたが、今回の新モデルでは内外装に広く木材を使用しました。キャンプ場や、避暑地など自然が豊かな地域で使用されることを想定しており、周囲に溶け込むようなデザインです。

2. ゆったりと過ごせる内部空間
「ROADIE」シリーズの特徴であるロフトは、約1mほどの高さがあり、ゆっくりとお休み頂けます。
ロフト下も約1.8mほどの高さがあるため、リビングスペースとしてお使い頂けます。


3. 外部と繋がる開放的な窓
開口部には1.7mほどの幅の全開口サッシがあり、外部空間との繋がりを持つ事ができます。

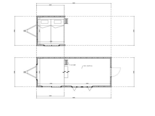
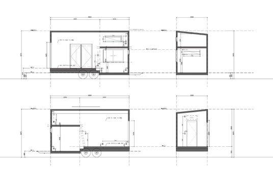
平面図・立面図




◼️販売価格
本体価格:¥6,480,000~(税別)
※別途工事費用についてはご相談ください
■ROADIE 20ft専用ページはこちら
https://yadokari.net/orchestra/roadie-20ft/
◼️YADOKARIのトレーラーハウスは全て車検取得・更新可能!
YADOKARIのトレーラーハウスは、シャーシだけではなく上物も含めた一体型車検、シャーシだけの車検のどちらも取得が可能で設置後の車検更新も可能なナンバープレート付きのトレーラーハウスです。近年のトレーラーハウスへの注目の高まりと、事業への活用が急増する中で行政・自治体から、車両であることの証明となる車検取得を求められたり、設置後に行政指導が行われるケースも増加傾向にあります。YADOKARIでは、法令に適合したトレーラーハウスを提供し、設置後の移設や中古販売のマーケット構築、新しい発想・素材などを活用した持続可能なものづくりを通して社会課題の解決を目指します。
■ 商品に関するお問い合わせはこちら
https://info.yadokari.net/form/tinyhouse
■ 販売代理店・協力パートナー募集中
YADOKARIではトレーラーハウスの販売にご協力をして頂くパートナー様を募集しております。カスタムモデルを制作したい、複数台購入したいといったご要望も承ります。ご興味のある方は問い合わせフォームからお問合せください。
会社紹介

■メッセージ
YADOKARIは、2011年3月11日に起きた東日本大震災をきっかけに、暮らしを根本から問い直す活動を始めました。この活動において、「お金・場所・時間に縛られない自由な生き方の実現」をテーマに、ミニマリズムや多拠点居住、シェアリング、そしてコミュニティや人との繋がりを重視した新しいライフスタイルを提案し、その思想や価値観の象徴として「タイニーハウス」の普及に力を注いできました。特に移動式トレーラーハウスの製造・販売・プロデュースを通じて、さまざまな社会課題の解決に取り組んでいます。
■会社概要
事業性・社会性・哲学性を共存させ、ビジョン「世界を変える、暮らしを創る」の実現を目指す「YADOKARI」。可動産・トレーラーハウスの企画・販売・製造・リユースマッチングや可動産を活用した事業企画・プロデュース、メディアPR・ブランドサポートを通じて、遊休地活用、地方創生、災害支援、コミュニティ形成などの社会課題解決に取り組む。
また、トレーラーハウスを活用したビレッジ「YADOKARI VILLAGE 北軽井沢」(2024年秋開業)の企画・運営、暮らしを啓くコミュニティメディア「YADOKARI.net」の運営、トレーラーハウスの販売・リセールプラットフォーム「TINY HOUSE ORCHESTRA」の運営も行う。著書に『ニッポンの新しい小屋暮らし』(光文社)、『アイム・ミニマリスト』(三栄書房)、『未来住まい方会議』(三輪舎)、『月極本』などがあり、これらは日本のみならず、中国や韓国などアジア圏でも多数出版されている。
会社名:YADOKARI株式会社
代表者:代表取締役 上杉勢太・さわだいっせい
設立日:2013年11月1日
所在地:神奈川県横浜市保土ヶ谷区星川1-1-1 星天qlay
事業内容:
・可動産エリアイノベーション事業
・可動産の企画・販売・製造・リユース
・可動産のフィールド開発プロデュース・オペレーション
会社サイト:https://yadokari.company/
ウェブメディア:https://yadokari.net/
公式 Instagram:https://www.instagram.com/yadokari_mobi/
公式 Facebook : https://www.facebook.com/yadokari.mobi/
▼本件に関するお問い合わせ・取材依頼
取材依頼 YADOKARI株式会社 広報宛 メールアドレス:pr@yadokari.net
企業プレスリリース詳細へ
PR TIMESトップへ
この記事のCategory
求人情報
愛知/津島市/洋菓子工場の製造管理 業績好調 70年以上の歴史を持つ老舗メーカー
三州製菓株式会社
勤務地:愛知県雇用形態:正社員給与:年収450万円~550万円スポンサー:求人ボックス
受付/5年連続/ホワイト企業認定/取得企業!/賞与年3回
FIDIA SOLUTIONS株式会社
勤務地:大阪府雇用形態:正社員給与:月給20万円~28万円スポンサー:求人ボックス
20~30代活躍中「未経験OK」採用事務アシスタント/土日祝休/研修充実
株式会社foredge
勤務地:大阪府雇用形態:アルバイト・パート給与:時給1,300円~スポンサー:求人ボックス
ガイドに沿って電子機器の組立/冷暖房完備/当社スタッフ活躍中/
株式会社ジョブセイバー
勤務地:愛知県雇用形態:派遣社員給与:時給1,200円~スポンサー:求人ボックス
未経験歓迎/飛び込み・テレアポなしの提案営業/YouTubeで仕事公開中/有休81.94%
株式会社スギデン
勤務地:東京都雇用形態:正社員給与:月給23万7,000円スポンサー:求人ボックス
テストエンジニア 未経験歓迎 PC・スマホ等を壊す仕事/内定まで最短2日も可/住宅手当や社宅あり
株式会社スタッフサービス
勤務地:東京都雇用形態:給与:月給21万5,000円~60万円スポンサー:求人ボックス
