【観光地ど真ん中】ナニワの台所「黒門市場」内に新しい民泊施設が誕生。GRACIAS KUROMON by eni.【NEW OPEN!】

2024年11月22日(金)「GRACIAS KUROMON by eni.(グラシアス くろもん バイエニ)」 NEW OPEN!最大13名宿泊可能。観光地アクセス抜群!【ご予約受付中】

大阪を中心に民泊施設を運営する株式会社LDKプロジェクト(所在地:大阪府中央区、代表:生田博之)は2024年11月22日(金)に大阪「日本橋」に新しい民泊施設「GRACIAS KUROMON by eni.(グラシアス くろもん バイ エニ )」をOPENいたします。
《公式予約》https://go2eni.com/prtimes_gckmhp
《Instagram》https://go2eni.com/prtimes_eniinst
・「GRACIAS KUROMON by eni.」のある黒門市場について

今回新しくOPENする「GRACIAS KUROMON by eni.(グラシアス くろもん バイ エニ )」は大阪メトロ「日本橋」駅から徒歩6分、人気観光地「黒門市場」の中にあります。
‘‘ナニワの台所‘‘と呼ばれる黒門市場は、1902年の明治時代から続く大阪を代表する歴史ある市場です。全長約580m、約150店舗が連なり、アーケードの中は常に地域の人や観光客で賑わっています。近年では外国人観光客向けの店舗が多く、店前には食べ歩きメニューが充実。インバウンド向けの観光地としても非常に人気のあるエリアです。また、最寄り駅である日本橋駅はミナミの観光主要エリアである心斎橋、道頓堀やなんばへのアクセスも抜群、大阪観光の拠点としても最適です。

黒門市場

・民泊施設「GRACIAS KUROMON by eni.」

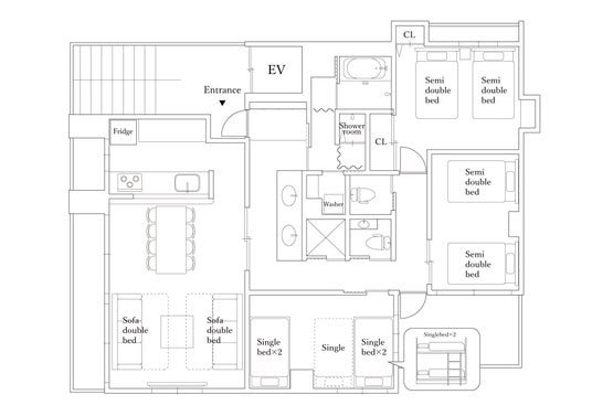
「GRACIAS KUROMON by eni.」は合計2室あり、マンションの3階と4階それぞれワンフロア専有となっています。フロア全体が1室専用となっているため、同フロアで他の宿泊者と会う事がなくプライバシーが保たれます。施設全体の広さは約100平方メートル 、LDKは19.4畳と広々とした間取りとなっています。寝室も3部屋あり最大で13名までの宿泊が可能です。

ダイニングキッチン

リビング
一般家庭サイズのキッチンに加えて、電子レンジや電気ポットなどの家電、鍋やフライパンなどの調理器具も充実。リビングダイニングにはひろびろ8人が座れるサイズのソファや、8人掛けの大きなダイニングテーブルが設置してあるのも大きな特徴です。旅行中でも、まるで自分の家にいるかのようにゆったりくつろぐ事が可能です。
・水廻り

ホールに洗面化粧台
水廻りには「eni.」施設の特徴でもある円形のミラーを採用。背面の関節照明は化粧のしやすさだけでなく、お部屋全体の雰囲気を演出してくれます。洗面はダブルボウル仕様なので、忙しい朝でも渋滞せずに済むのが嬉しいポイント。バスルームはお湯を溜めれる浴槽付タイプの他、別途シャワールームも完備。ドライヤーはパナソニックのイオニティを採用。そのほかシャンプーコンディショナー、クレンジングや化粧水などのアメニティもPOLAで統一しています。このアメニティへのこだわりと、大人数に対応したゆったりした水廻り設計は「eni.」の特徴ともいえます。
また、脱衣室には洗濯機とアイロンも完備。長期滞在の衣類不足に悩まなくていいのも、さらに嬉しいポイントです。

シャワールーム 奥に浴室

洗濯機 物干し

アメニティ ドライヤー
・各寝室

寝室1

寝室2

寝室3
寝室は合計で3部屋あり、リビングのソファベッドも使用すれば最大13名までの宿泊が可能です。間取りは家族や友人グループなど大人数での旅行でもプライバシーが保てる仕様に。寝室1,2にはセミダブルベッドをそれぞれ設置。1人でもゆったりお休みいただけます。寝室3は3段ベッドを採用。宿泊人数に合わせてお部屋をカスタマイズできるのも特徴です。
(寝室1:セミダブルベッド2台 寝室2:セミダブルベッド2台 寝室3:2段ベッド1台/3段ベッド1台 リビング:ダブルソファベッド2台)


とうとう来年は万博開催となる大阪。弊社民泊施設も国内外問わず、来年の宿泊予約が徐々に増えていっている状態です。ますます魅力的になる大阪に週末ふらっと遊びに寄ってみませんか。
「GRACIAS KUROMON by eni.」へのご予約お待ちしております。
・間取り図

<当施設の概要>
●施設名:GRACIAS KUROMON by eni.(グラシアス くろもん バイ エニ )
●住所 :〒542-0073 大阪府大阪市中央区日本橋2-12-18 おおきに黒門市場ビル
●アクセス :大阪メトロ「日本橋」駅から徒歩6分
●料金プラン:30000円~
《公式予約》https://go2eni.com/prtimes_gckmhp
・eniとは

eni.のコンセプト
extraordinary(非日常)
narrative(物語)
identity(自分であること)
忙しい日々を離れて、人生をすこしだけステイしませんか。eni.(エニ)はニッポンのあたらしい滞在体験をつくる都市型バケーションレンタルです。ゆっくりとくつろげる空間づくりをいちばんに考えながら、思い出に残したくなる世界観とインテリアにもこだわりました。リラックスするほどに、本来のジブンを取り戻していく。旅する人たちの物語の1ページをつづる、そんな居場所になりたいと思います。
《Instagram》https://go2eni.com/prtimes_eniinst
《公式HP》https://go2eni.com/prtimes_eni
・わたしたちLDKプロジェクトについて

人生に綴られる ひとときをつくる
宿泊は「お客様の時間をお預かりして、快適で価値のある空間とサービスを提供すること」だと私たちは考えています。「また泊まりたい」と思ってもらえる施設をつくりたい。 設備やサービス、インテリア、清掃にいたるまで、 手を抜かず、心をこめる。訪れた人の「人生」 という物語の1ページになるような思い出に残る時間と体験ができる宿泊施設を提供します。
企 業 名 : 株式会社LDKプロジェクト
所 在 地 : 〒540-0017 大阪府大阪市中央区松屋町住吉6-26 eninal MACCHAMACHI 2F
代 表 者 : 代表取締役 生田博之
事業概要: 民泊施設の運営管理、レンタルスペースの運営管理、不動産賃貸業、清掃業務、貸別荘運
営、サウナ事業
《公式HP》https://ldk-pjt.com/
【民泊運営代行に関するご相談やご質問先】
使用していない部屋を活用したい、民泊に興味があるけれど知識もなく不安、実際に自分でもできるか確認したいなど、些細な相談でもかまいません。業界をリードする大阪で長年民泊を営むLDKプロジェクトが丁寧にお答えします。お気軽にどうぞ!
《民泊代行ページ》https://ldk-pjt.com/service/
【本件に関するお問合わせ・取材等のお申込み先】
株式会社LDKプロジェクト 運営管理担当
テレビや雑誌、新聞社様からの取材大歓迎です。
お気軽にお問合せくださいませ。
E-mail:marketing.div@ldk-pjt.com
企業プレスリリース詳細へ
PR TIMESトップへ
この記事のCategory
求人情報
最高時給1700円/楽しく稼げるイベントバイト!フリーターさん大活躍中
株式会社エーテル
勤務地:東京都雇用形態:正社員 / アルバイト・パート / 契約社員 / 業務委託 / 新卒・インターン給与:時給1,230円~スポンサー:求人ボックス
閉店後スーパーの店舗巡回スタッフ
スリーエスコーポレーション株式会社 渋谷店
勤務地:東京都雇用形態:正社員給与:月給24万円~31万円スポンサー:求人ボックス
法人営業/選べる営業手法
株式会社ユニマットライフ 青山セールスセンター
勤務地:東京都雇用形態:正社員給与:月給21万5,000円~50万円スポンサー:求人ボックス
ローコード開発エンジニア/フルリモート/月給50万円以上
Peaceful Morning株式会社
勤務地:東京都雇用形態:業務委託給与:月給50万円~65万円スポンサー:求人ボックス
港湾工事/クレーン台船/現場作業スタッフ
吉野建設株式会社
勤務地:大阪府雇用形態:正社員給与:月給32万円~40万円スポンサー:求人ボックス
「ALSOKグループ」登録ヘルパー/高時給2050円/未経験歓迎/高円寺
ALSOKらいふケア株式会社
勤務地:東京都雇用形態:アルバイト・パート給与:時給1,430円~2,050円スポンサー:求人ボックス
