【非日常を味わえる宿泊】和モダンテイストのこだわりのインテリアと、ゆったりくつろげる壺風呂【eni.suite MACCHAMACHI NEW OPEN!】

2024年11月25日(月)「eni.suite macchamachi (エニ スイート マッチャマチ)」NEW OPEN!最大9名宿泊可能。【ご予約受付中】

メイン1.写真
大阪を中心に民泊施設を運営する株式会社LDKプロジェクト(所在地:大阪府中央区、代表:生田博之)は2024年11月25日(月)に大阪市中央区松屋町の自社ビル内に新しい民泊施設「eni.suite MACCHAMACHI (エニ スイート マッチャマチ)」をOPENいたします。
《公式予約》https://go2eni.com/prtimes_esmaccha
《Instagram》https://go2eni.com/prtimes_eniinst

■eni.suite MACCHAMACHI について

今回NEW OPENする「eni.suite MACCHAMACHI」は大阪市中央区「松屋町」駅すぐ近くにあります。周辺エリアは大阪人には「まっちゃまち」という親しみのある愛称で呼ばれ、人形や玩具の古くからの問屋街であることでも有名です。大阪の人気観光地である「心斎橋」駅からわずか2駅と観光地アクセスも良好。施設周辺はマンションが立ち並ぶ住宅街であるため、比較的静かでのんびりしています。

松屋町町写真
■LDK

LDK全体
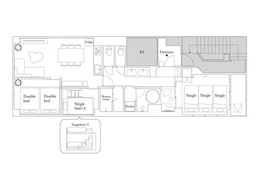
当施設は自社ビル内にある民泊施設であり、弊社事務所の上階となります。階数は4階、ワンフロア専有となっており、施設全体は82平方メートル 。LDKは約18畳で寝室は合計で3部屋あり、最大で9名の宿泊が可能です。
大きな特徴は、まるで非日常の空間にいるような和モダンのインテリアと、リビングの円形の関節照明です。「eni.」シリーズのコンセプトである「縁になる」を”円”という形で表現したもので、同シリーズの施設内にこの象徴は数多く登場します。今回、記念すべき自社ビル内の施設ということで、この「円」をメインであるLDKに大きく配置しています。

リビング

ダイニングキッチン
■水廻り

壺風呂付浴室
そして当施設2つ目の大きな特徴は、浴室の壺風呂です。大きな窓がついている開放的な室内に重厚感のある壺型の浴槽を設置。厚い陶器の素材は湯の保温効果が高く、体を芯まで温めます。湯船につかりながら、正面の窓からは玄関のインテリアをゆったり眺める事が可能です。

玄関
玄関正面にはLDKと同じく、「円」を象徴するデザインを配置。右手の窓は先程の浴室のものであり、湯舟につかりながらこの和の空間を楽しんでいただける仕様になっています。

ホール
ホールにはダブルボウルの洗面を設置。大理石調の白いカウンターが空間に清潔感を与えます。
アメニティも充実したラインナップをそろえています。

POLA クレンジング 化粧水 乳液
■各寝室

主寝室

2段ベッド

和室
寝室は合計で3部屋あり、最大9名までの宿泊が可能。うち一室は和室となっており、布団もご用意しております。寝具のお好みに合わせて就寝する部屋を選ぶ事が可能です。
(主寝室:ダブルベッド2台 寝室:シングル2段ベッド1台 和室:布団3組)


ここ「eni.suite MACCHAMACHI」で上質なひとときを過ごしませんか。
ぜひ、ご予約お待ちしております。
■間取り図

<当施設の概要>
●施設名:eni.suite MACCHAMACHI(エニ スイート マッチャマチ)
●住所 :〒540-0017 大阪府大阪市中央区松屋町住吉6-26 eninal MACCHAMACHI 4F
●アクセス :地下鉄長堀鶴見緑地線 「松屋町駅」から徒歩3分
●予約サイト:https://go2eni.com/prtimes_esmaccha
※最低宿泊日数は2泊3日からとなります。
●料金プラン:30,000円~
■「eni.」について

eni.のコンセプト
extraordinary(非日常)
narrative(物語)
identity(自分であること)
忙しい日々を離れて、人生をすこしだけステイしませんか。eni.(エニ)はニッポンのあたらしい滞在体験をつくる都市型バケーションレンタルです。ゆっくりとくつろげる空間づくりをいちばんに考えながら、思い出に残したくなる世界観とインテリアにもこだわりました。リラックスするほどに、本来のジブンを取り戻していく。旅する人たちの物語の1ページをつづる、そんな居場所になりたいと思います。
《Instagram》https://go2eni.com/prtimes_eniinst
《公式HP》https://go2eni.com/prtimes_eni
■わたしたちLDKプロジェクトについて

人生に綴られる ひとときをつくる
宿泊は「お客様の時間をお預かりして、快適で価値のある空間とサービスを提供すること」だと私たちは考えています。「また泊まりたい」と思ってもらえる施設をつくりたい。 設備やサービス、インテリア、清掃にいたるまで、 手を抜かず、心をこめる。訪れた人の「人生」 という物語の1ページになるような思い出に残る時間と体験ができる宿泊施設を提供します。
企 業 名 : 株式会社LDKプロジェクト
所 在 地 : 〒540-0017 大阪府大阪市中央区松屋町住吉6-26 eninal MACCHAMACHI 2F
代 表 者 : 代表取締役 生田博之
事業概要: 民泊施設の運営管理、レンタルスペースの運営管理、不動産賃貸業、清掃業務、貸別荘運
営、サウナ事業
《公式HP》https://ldk-pjt.com/
【民泊運営代行に関するご相談やご質問先】
使用していない部屋を活用したい、民泊に興味があるけれど知識もなく不安、実際に自分でもできるか確認したいなど、些細な相談でもかまいません。業界をリードする大阪で長年民泊を営むLDKプロジェクトが丁寧にお答えします。お気軽にどうぞ!
《民泊代行ページ》https://ldk-pjt.com/service/
【本件に関するお問合わせ・取材等のお申込み先】
株式会社LDKプロジェクト 運営管理担当
テレビや雑誌、新聞社様からの取材大歓迎です。
お気軽にお問合せくださいませ。
E-mail:marketing.div@ldk-pjt.com
企業プレスリリース詳細へ
PR TIMESトップへ
この記事のCategory
求人情報
セールスドライバー
ヤマト運輸株式会社
勤務地:東京都雇用形態:正社員給与:月給25万1,510円~25万8,710円スポンサー:求人ボックス
福岡市内・北九州から勤務地選べる/派遣のオフィスワーク/シフトも選べる
株式会社ベルシステム24
勤務地:福岡県 福岡市雇用形態:派遣社員給与:時給1,210円~1,370円スポンサー:求人ボックス
梱包、営業その他、検品
山城青果株式会社
勤務地:大阪府雇用形態:正社員給与:月給30万円~35万円スポンサー:求人ボックス
増員により急募/月収30万・年収480万~・社宅完備「学歴や経験は関係なし」クレーン組立・玉掛けスタッフ
株式会社Fast one
勤務地:愛知県雇用形態:正社員給与:日給1万2,000円~スポンサー:求人ボックス
木材の分別作業・収集
関西商事株式会社
勤務地:大阪府雇用形態:正社員給与:月給36万8,000円スポンサー:求人ボックス
営業アシスタント/オープニング/年収upしたい方へ/立ち上げメンバー
株式会社Reach out
勤務地:大阪府雇用形態:正社員給与:月給30万円~40万円スポンサー:求人ボックス
